みどり市大間々町塩原平屋

300万円

群馬県みどり市大間々町塩原1083-2

わたらせ渓谷鉄道「上神梅」駅徒歩30分

東武桐生線「赤城」駅徒歩56分

価格
300万円
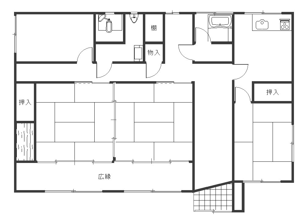
間取り
4DK
土地面積
788.02㎡
所在地
群馬県みどり市大間々町塩原1083-2
交通

わたらせ渓谷鉄道上神梅」駅 徒歩30分

東武桐生線赤城」駅 徒歩56分

建物面積
109.75㎡
築年月
1976年9月(築49年)

物件の特徴

  • バストイレ別

セールスポイント

山の中にある平屋戸建て。自然の中でゆったり生活したい方にお勧めです!ノスタルジックな広々とした和室から続く縁側で虫や鳥の声を聴きながらのんびり過ごせる環境です。山をながめながら広いお庭でBBQも出来ちゃいます!随時内見可能ですのでお気軽にご相談下さい。

基本情報

販売戸数
-
総戸数
-
間取り / 詳細
4DK
和室 6.0帖 1室/和室 8.0帖 1室/和室 8.0帖 1室/洋室 6.0帖 1室
向き
-
建物面積(坪数)
109.75㎡(33.19坪)
土地面積(坪数)
788.02㎡(238.37坪)
建ぺい率 /
容積率
-/-
築年月
1976年9月(築49年)
駐車場 / 月額
有 / -
土地権利
所有権
土地
(敷金 / 保証金)
- / -
建物構造
木造 / 1階建
傾斜地部分面積
-
路地状敷地
-
私道負担面積
-
セットバック
高圧線下面積
-
施工会社
-
用途地域
無指定
地目 / 地勢
宅地 / 高台
接道状況
一方(東)(西)
国土法届出要否
不要
都市計画
非線引区域
総区画数 /
販売区画数
-/-
現況
空家
その他
法令上の制限
景観法
取引態様
一般媒介
引渡し
相談
取引条件の
有効期限
2026年03月21日

設備条件

設備条件
  • 専用庭 / プロパンガス / 公営水道 / 浄化槽排水 / 駐車2台可 / バス・トイレ別
設備(その他)
    -

その他

物件番号
92347405
管理コード
-
建築確認番号
-
情報更新日
2026年03月07日
次回更新予定日
2026年03月21日
取扱会社
  • 株式会社アンカー
  • 群馬県桐生市巴町2丁目1832-9 アンカービル 1F
  • TEL:0277-45-1464
  • 群馬県知事 (8) 第5343号
  • (公社)全日本不動産協会
    (公社)不動産保証協会
    全国賃貸管理ビジネス協会
    (公財)日本賃貸住宅管理協会
    居住支援法人

支払いシミュレーション

月々の支払額
購入希望物件価格
万円
頭金
万円
金利
%
返済額(ボーナス1回分)
万円
返済期間

※ボーナスは自動で年2回分で計算されます。

近隣の物件

  1. みどり市笠懸町鹿中古戸建

    みどり市笠懸町鹿

    6LDK (140.48㎡)

    1,280万円

よく見られている物件

  1. 桐生市東2丁目古民家

    桐生市東2丁目

    4K (57.85㎡)

    450万円

  2. 錦町ビル

    桐生市錦町2丁目

    1R (301.93㎡)

    550万円

  3. 住宅+店舗+倉庫

    桐生市相生町3丁目

    3LDK (61.82㎡)

    400万円

  4. 桐生市相生町三丁目戸建

    桐生市相生町3丁目

    5K (67.89㎡)

    800万円

みどり市大間々町塩原平屋

みどり市大間々町塩原平屋

300万円

-

4DK(109.75㎡)

お気軽にお問い合わせください

無料お問い合わせ

株式会社アンカー

0277-45-1464

9:00~18:00

(休:日曜・祭日)