桐生市梅田町4丁目ログハウス風中古戸建

850万円

群馬県桐生市梅田町4丁目

両毛線「桐生」駅バス32分群馬県桐生市「梅田大橋」停歩38分

価格
850万円
間取り/建物面積
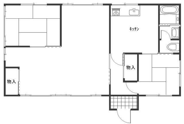
3DK/72.72㎡
所在地
群馬県桐生市梅田町4丁目
築年
1933年1月(築93年)
駐車
交通

両毛線桐生」駅 バス32分 群馬県桐生市「梅田大橋」 停歩38分

桐生市梅田町4丁目ログハウス風中古戸建の基本情報

物件名
桐生市梅田町4丁目ログハウス風中古戸建
価格
850万円
建物面積
72.72㎡
土地面積
1150.32坪(3802.72㎡)
築年月
1933年1月(築93年)
総戸数
-
所在地
群馬県桐生市梅田町4丁目
交通

両毛線桐生」駅 バス32分 群馬県桐生市「梅田大橋」 停歩38分

桐生市梅田町4丁目ログハウス風中古戸建の詳細情報

設備条件
設備(その他)
    -
駐車場/月額
有/0円
土地権利
所有権
国土法届出
不要
用途地域
-
取引態様
一般媒介
引渡し
相談

桐生市梅田町4丁目ログハウス風中古戸建で募集中の物件

  1. 21.99坪 (72.72㎡)

    850万円(0.74万円/坪)

近隣の物件

  1. 桐生市梅田町4丁目

    3DK (72.72㎡)

    850万円

  2. 桐生市川内町2丁目

    5DK (115.79㎡)

    380万円

  3. 桐生市梅田町2丁目

    4K (105.78㎡)

    650万円

  4. 桐生市境野町4丁目

    3LDK (54.22㎡)

    250万円

桐生市梅田町4丁目ログハウス風中古戸建

お気軽にお問い合わせください

無料お問い合わせ

株式会社アンカー

0277-45-1464

9:00~18:00

(休:日曜・祭日)