堤町1丁目戸建て

190万円

群馬県桐生市堤町1丁目2347-1

上毛電鉄「丸山下」駅徒歩9分

価格
190万円
間取り/建物面積
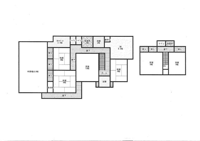
7DK/194.17㎡
所在地
群馬県桐生市堤町1丁目2347-1
築年
1978年5月(築47年)
駐車
交通

上毛電鉄丸山下」駅 徒歩9分

堤町1丁目戸建ての基本情報

物件名
堤町1丁目戸建て
価格
190万円
建物面積
194.17㎡
土地面積
140.35坪(463.98㎡)
築年月
1978年5月(築47年)
総戸数
-
所在地
群馬県桐生市堤町1丁目2347-1
交通

上毛電鉄丸山下」駅 徒歩9分

堤町1丁目戸建ての詳細情報

設備条件
設備(その他)
    -
駐車場/月額
有/-
土地権利
所有権
国土法届出
不要
用途地域
第一種住居
取引態様
専任媒介
引渡し
相談

堤町1丁目戸建てで募集中の物件

  1. 58.73坪 (194.17㎡)

    190万円(3.24万円/坪)

近隣の物件

  1. 桐生市錦町2丁目

    1R (301.93㎡)

    650万円

  2. 桐生市堤町3丁目

    3DK (68.73㎡)

    330万円

  3. 桐生市浜松町1丁目

    2DK (47.10㎡)

    50万円

  4. 桐生市相生町2丁目

    2DK (52.99㎡)

    999万円

堤町1丁目戸建て

お気軽にお問い合わせください

無料お問い合わせ

株式会社アンカー

0277-45-1464

9:00~18:00

(休:日曜・祭日)